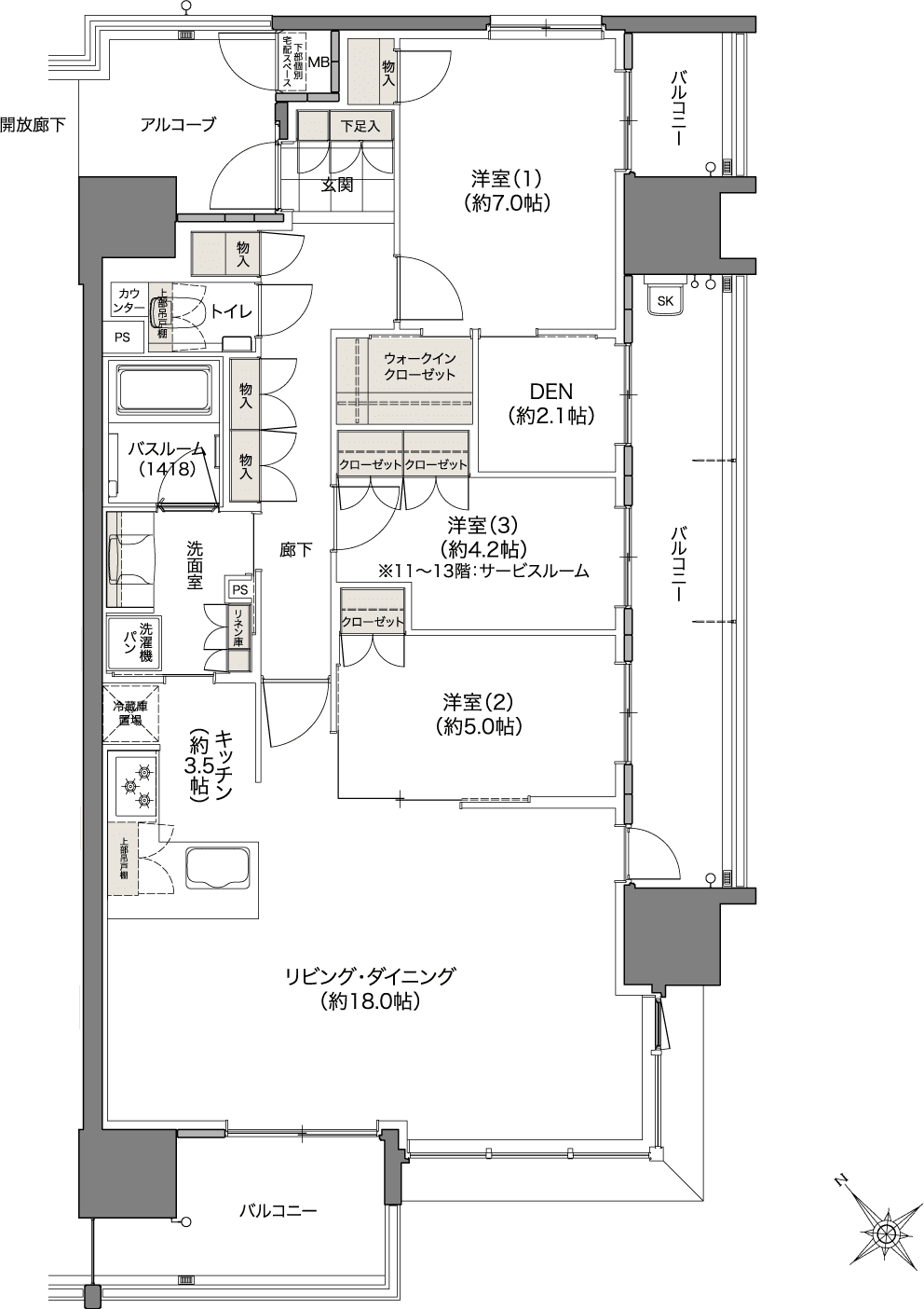
K-PO TYPE

SUPERIOR CLASS | 11-19F

3LDK+DEN+WIC

※11~13階は2LDK+S+DEN+WIC

住居専有面積 / 90.29㎡(27.31坪)

バルコニー面積 / 21.37㎡(6.46坪)
アルコーブ面積 / 4.68㎡(1.41坪)
メーターボックス面積 / 0.65㎡(0.19坪)

K-PO TYPE

S:サービスルーム
WIC:ウォークインクローゼット

住戸表
収納 収納

S:サービスルーム MC:マルチクローゼット WIC:ウォークインクローゼット P:パントリー N:納戸 TR:トランクルーム
※掲載の間取りは設計段階のものであり、今後変更になる場合があります。